About Project
We are thrilled to announce our latest structural endeavor at the iconic InterMiami CF Stadium, where innovation meets luxury in the heart of South Florida’s vibrant sports and entertainment scene.
Our team of expert structural engineers has meticulously crafted a visionary space that seamlessly blends sophistication, functionality, and unparalleled design.
Nestled within the stadium’s dynamic ambiance, our VIP suite stands as a beacon of exclusivity, offering guests an elevated experience with panoramic views of the action on the field. From intimate gatherings to corporate events, the VIP suite sets the stage for unforgettable moments and unparalleled hospitality.
Adjacent to the suite, our bespoke speakeasy bar beckons patrons with its timeless allure and refined charm. A sanctuary of style and sophistication, the bar’s sleek design and artisanal craftsmanship create an atmosphere where every drink becomes a toast to the good life.
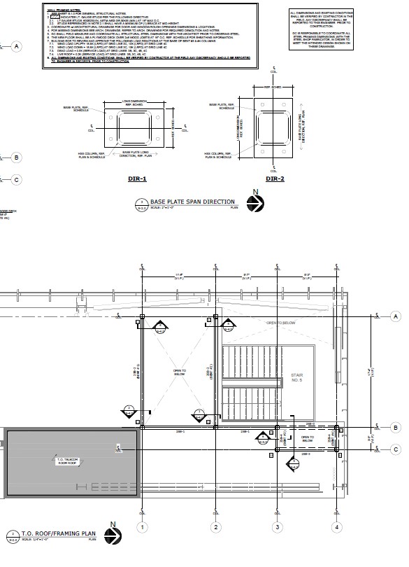
At the heart of our design lies the innovative use of steel supports for glass, marrying structural integrity with architectural elegance. These meticulously engineered supports not only elevate the stadium’s aesthetic appeal but also ensure unobstructed sightlines and a sense of openness throughout the space while providing protection and safety.
As we raise the bar for premium entertainment experiences, our commitment to excellence shines through in every detail of the InterMiami CF Stadium project. From concept to completion, we remain dedicated to shaping environments that inspire, captivate, and leave a lasting impression.
Join us as we redefine the boundaries of architectural innovation and elevate the InterMiami CF Stadium experience to new heights. Welcome to a world where luxury meets legacy, where design transcends boundaries, and where dreams take flight.



